반응형
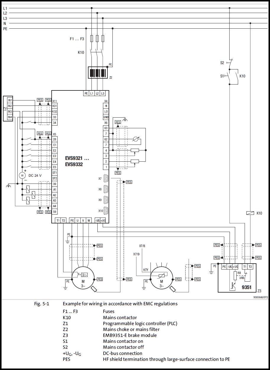
Lenze 서보드라이브 9300 결선도 입니다.


상세한 결선도 자료는 아래 파일을 다운로드 하시기 바랍니다.

Lenze 9300 제품의 파라미터, 에러코드 관련 자료는 아래 포스팅을 참고해주시기 바랍니다.
반응형
'Lenze' 카테고리의 다른 글
| Lenze GDC (1) - Save parameter as a file (Read) (0) | 2023.03.17 |
|---|---|
| Lenze 9300 Servo Drive (3) - Error Codes (0) | 2023.03.16 |
| Lenze 9300 Servo Drive (1) - Parameter (0) | 2023.03.16 |
| Lenze 8200 Inverter (3) - Parameter (0) | 2023.03.16 |
| Lenze 8200 Inverter (2) - Manual (0) | 2023.03.16 |


댓글